【行业标准】橡胶补偿接管CB/T 965-1995船舶标准
来源:http://www.songjiangjituan.com/1741.html 发布于:2018-09-05 01:32 浏览:5,428
【行业标准】橡胶补偿接管CB/T 965-1995船舶标准
上海淞江减震器集团有限公司官方网站为您介绍:【行业标准】橡胶补偿接管CB/T 965-1995船舶标准信息,淞江集团为众多船舶公司提供各种减震器产品,主要包括橡胶补偿接管、橡胶减震器等产品,主要起到减震和降噪的作用,以下是橡胶补偿接管CB/T 965-1995船舶标准详细介绍。

CB
中华人民共和国船舶行业标准
CB/T 965-1995
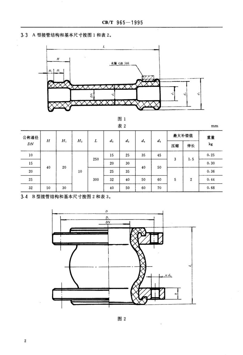
橡胶补偿接管
1995-12-19发布
1996-08-01实施
中国船舶工业总公司发布
分类号:U55
代替CB 965-80





淞江集团CB/T 965-1995船舶标准橡胶补偿接管实物拍照:
相关链接:橡胶接头资质证书













